York Avenue, London, SW14
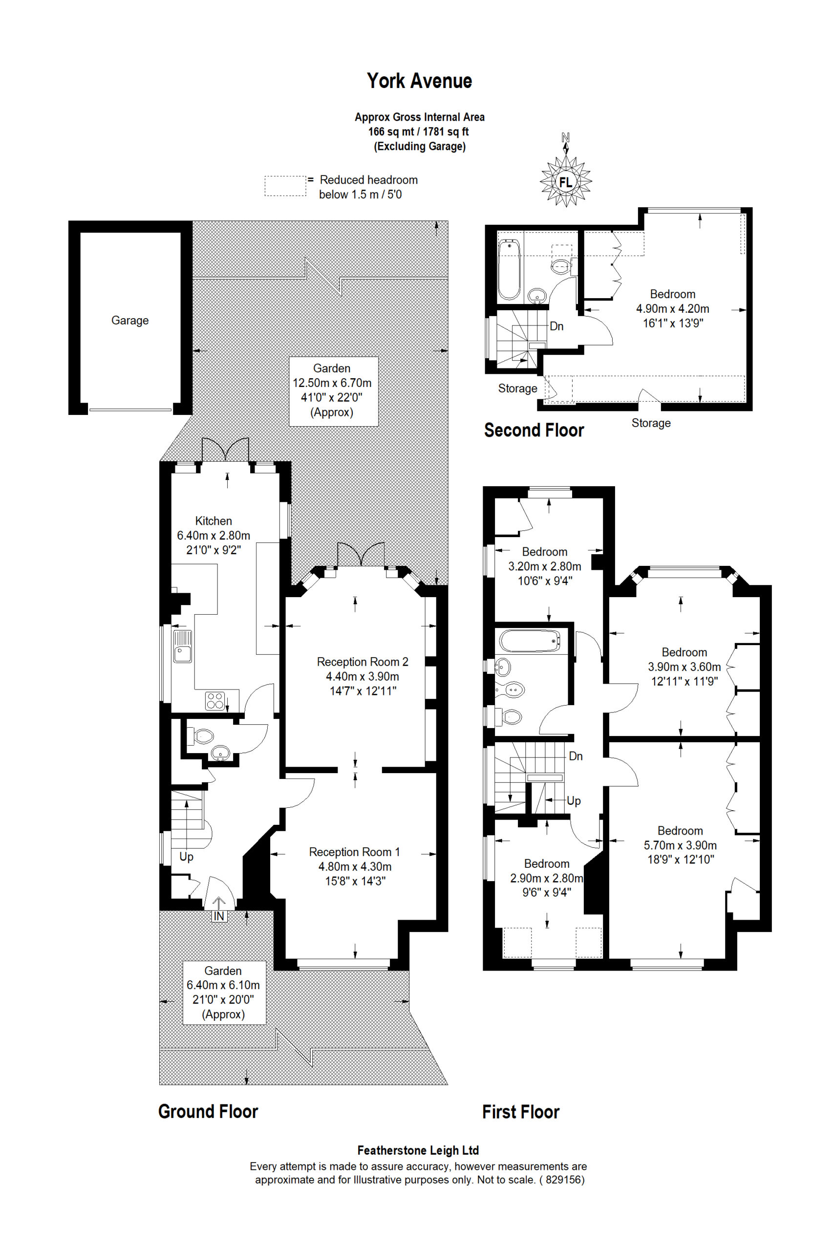
A wonderful semi-detached five bedroom family home situated in this prestigious and sought after Parkside location moments from Richmond Park. The property has accommodation well-arranged over three floors comprising to the ground floor, a spacious reception hall, two reception rooms, a kitchen/dining room and cloakroom, whilst the upper floor accommodation comprises five bedrooms and two bathrooms. The property is presented in excellent decorative order throughout and has the benefit of planning permission to extend to the rear and for the conversion of the garage to provide a gym/home office. Externally, to the rear of the property there is a mature 41’ garden with well stocked borders and garage accessed via a shared driveway, whilst to the front, there is a further walled garden.
EPC = E.

• SEMI DETACHED FAMILY HOUSE
• SOUGHT AFTER PARKSIDE LOCATION MOMENTS FROM RICHMOND PARK
• PLANNING PERMISSION TO EXTEND TO THE REAR AND CONVERT THE GARAGE
• TWO RECEPTION ROOMS
• KITCHEN/DINING ROOM
• FIVE BEDROOMS
• TWO BATHROOMS
• MATURE REAR GARDEN
• GARAGE
“Discover all you need to know about the surrounding area as you consider this property.”
Explore the map below to discover the York Avenue, London, SW14 area.

Brendan Wynne
Founding Director
Stamp duty calculator
On your doorstep… explore our local area so that you can make an informed decision about where you want to live
Recent properties for sale
































