West Temple Sheen, London, SW14
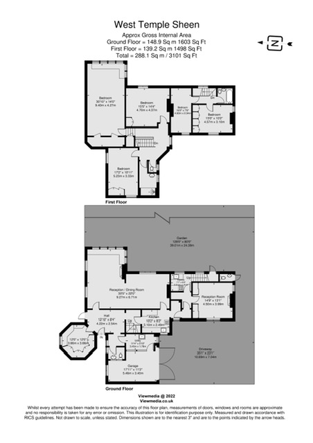
Greenfields Cottage is charming detached Victorian family home within a gorgeous secluded plot measuring approximately a third of an acre situated in this enviable Parkside location. Dating from the 1860’s, the property is believed to have been the coach house for Greenfields and has been within the same family ownership for over 100 years. Whilst the current house currently offers five bedrooms, the property offers excellent scope to reconfigure and extend (STPP) to create an even more substantial house than the 3,100 currently offered. This unique property sits within mature gardens measuring approximately 124’ x 80’ and planted with a variety of mature trees, whilst to the front of the property there is gated off street parking leading to the garage. EPC = E.
This wonderful property is situated to the southern end of West Temple Sheen which is an extremely desirable, private and peaceful cul-de-sac a stones throw Sheen Mount School and Sheen Common which in turn leads to Richmond Park with its 2,500 acres of natural parkland. Approximately ten minutes walk away is East Sheen Town Centre with Waitrose super market as well as an array of local shops, bars and restaurants whilst the commuter is well served by both Richmond Station and Mortlake stations with regular services in to London Waterloo, whilst for the motorist the A3, M3 and M4 are all nearby. Also nearby is Richmond Town Centre which offers an extensive range of shopping and leisure facilities including three cinemas and the renowned theatre located on its picturesque Green.

• SOUGHT AFTER PARKSIDE LOCATION MOMENTS FROM SHEEN COMMON
• DETACHED FORMER COACH HOUSE WITH EXCELENT POTENTIAL TO EXTEND (STPP)
• ACCOMMODATION IN EXCDESS OF 3,000 SQ FT
• SECLUDED PLOT APPROACHING 1/3 OF AN ACRE
• GARAGE & OFF STREET PARKING
“Discover all you need to know about the surrounding area as you consider this property.”
Explore the map below to discover the West Temple Sheen, London, SW14 area.

Brendan Wynne
Founding Director
Stamp duty calculator
On your doorstep… explore our local area so that you can make an informed decision about where you want to live
Recent properties for sale




















