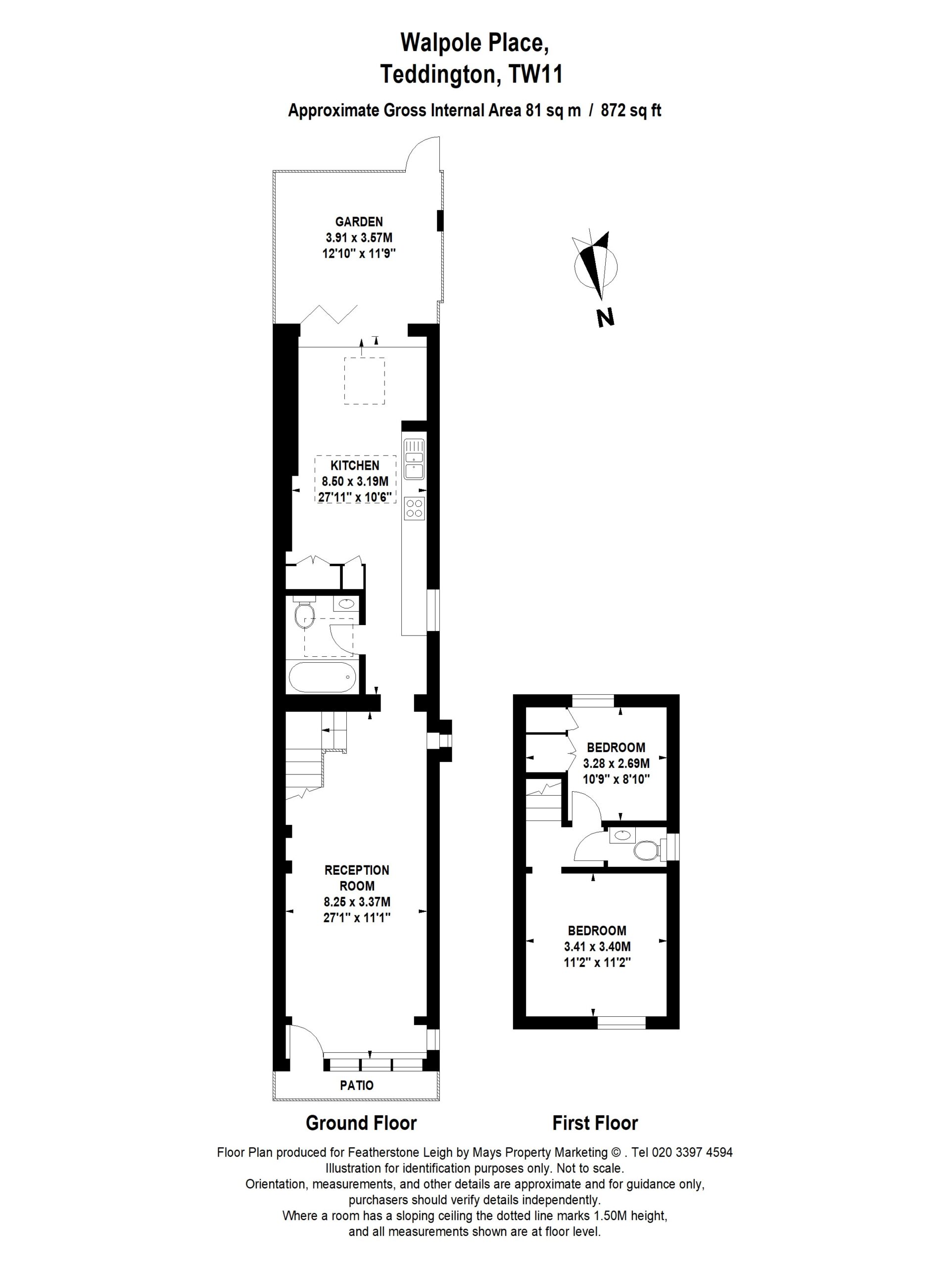
Walpole Place, Teddington, TW11
An expansive Victorian house in a quiet cul-de-sac in the heart of Teddington with two bedrooms. Recently refurbished throughout is has a massive living space, south-facing patio garden and excellent eco-credentials. No onward chain.
This beautifully presented Victorian family house has excellent eco credentials with a newly installed air-source heat pump. The house has been refurbished throughout with newly-laid flooring in an exceptionally spacious open-plan ground floor living space. The kitchen-diner to the rear of the property is also open-plan with an abundance of attractive white handleless units, integrated appliances and new bi-folding doors on to a south-facing patio garden and the contemporary family bathroom has large floor-to-ceiling porcelain tiling. On the first floor, there are two bedrooms with new carpeting plus a separate WC. The location is fabulous, being a very quiet cul-de-sac with other similar Victorian houses. However, it is only a mere 50 yards around the corner from all the central amenities on Broad Street. Bushy Park is in fact only 300 yards away, as is the train station which is within a third mile distance. It is in catchment for the OFSTED ‘outstanding’ St Mary’s & St Peter’s Primary School and the new Turin House Secondary School. EPC rated C

• Victorian house
• Two double bedrooms
• Expansive open-plan living space
• Refurbished kitchen & bathroom
• Bi-folding garden doors
• South-facing patio garden
• Eco air source heat pump central heating
• Cul-de-sac location
• 50 yards from Broad Street amenities
• No onward chain
“Discover all you need to know about the surrounding area as you consider this property.”
Explore the map below to discover the Walpole Place, Teddington, TW11 area.

Dan Johnson
Associate Director
Stamp duty calculator
On your doorstep… explore our local area so that you can make an informed decision about where you want to live
Recent properties for sale



















