Shaef Way, Teddington, TW11
A ground floor maisonette with a private rear garden, garage & two double bedrooms. It has nearly 800 sq ft of floor space with spacious living room, kitchen & beautiful block-parquet flooring throughout. It is opposite Bushy Park & only 1/2 a mile from Teddington Station.
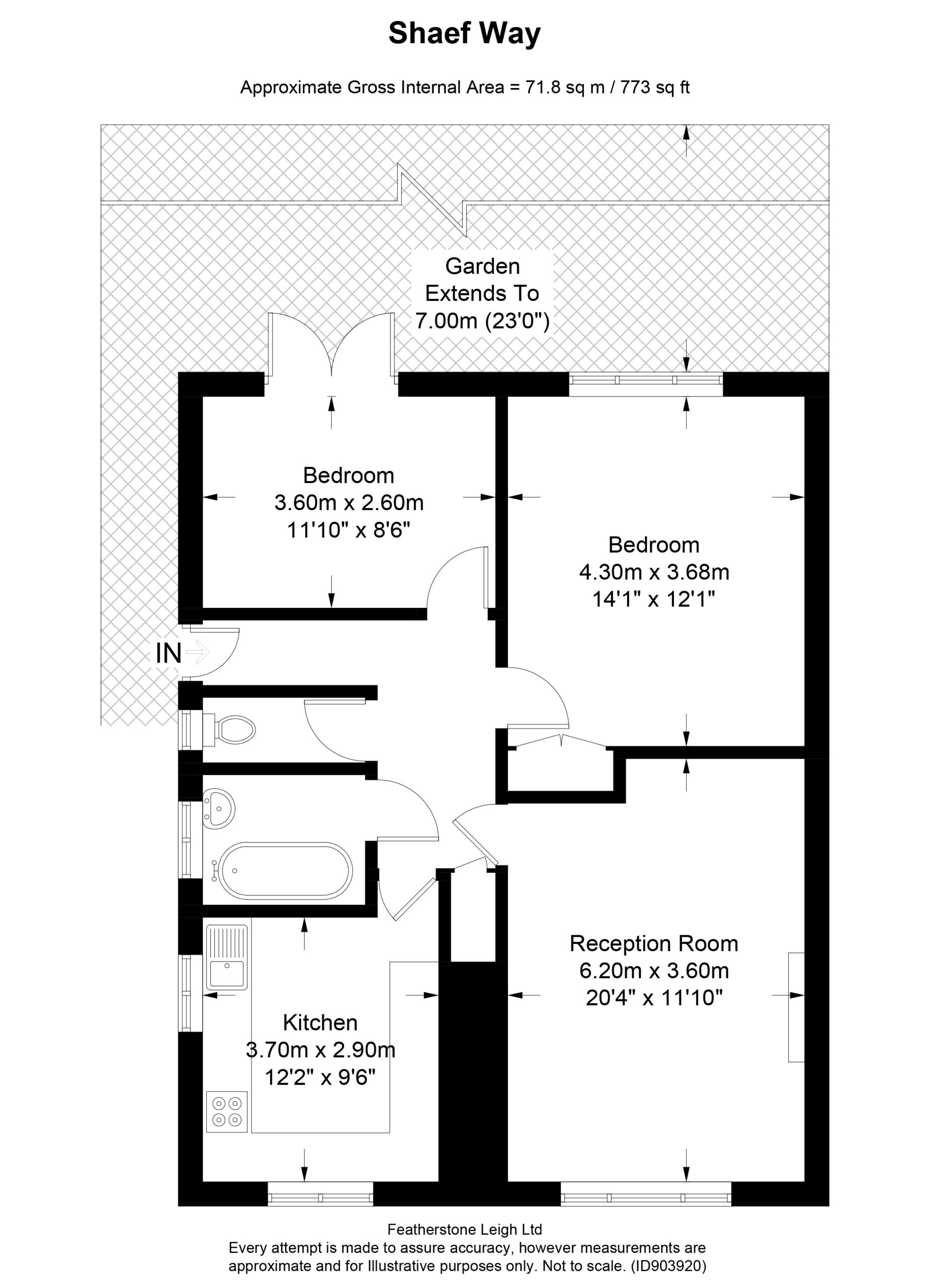
This is a well-presented ground floor maisonette with private rear garden located in a popular development just opposite the incredible open wilderness of Bushy Park. It has beautifully-presented block-parquet flooring throughout, double-glazing and includes a garage within the development. There is parking available to the front of the property too. Internally, there is nearly 800 sq ft of space with two double bedrooms, one has French doors on to the garden. To the front of the property there is a well-appointed, fitted kitchen and a very spacious living room with feature fireplace. It is offered to the market with no onward chain and a long 936 year lease. It has a low ground rent payable of £17 pa and there are no service charges payable as all the cost of maintenance are the responsibility of the leaseholder. Shaef Way is also a fabulous location for commuters to the city as it is actually less than half a mile from Teddington train station and young families as it is in catchment for Collis Primary School and Teddington Secondary. Lease remaining – 933 years Ground Rent – £17pa Service Charges – £0pa Council Tax Band – D (£2,486pa) EPC rated C

• Ground floor maisonette
• Two double bedrooms
• Private rear garden
• Garage
• Nearly 800 sq ft internal area
• Block-parquet flooring throughout
• Large living room
• Spacious fitted kitchen
• Private front door
• Double-glazing throughout
“Discover all you need to know about the surrounding area as you consider this property.”
Explore the map below to discover the Shaef Way, Teddington, TW11 area.

Dan Johnson
Associate Director
Stamp duty calculator
On your doorstep… explore our local area so that you can make an informed decision about where you want to live
Recent properties for sale





















