Selwyn Avenue, Richmond, TW9
Situated on the desirable and sought-after Selwyn Avenue is this beautifully presented, well-appointed, four-bedroom, end-of-terrace family home. Offering bright and contemporary living space, just moments from central Richmond and Richmond tube and train station, with its transport links into central London and beyond.
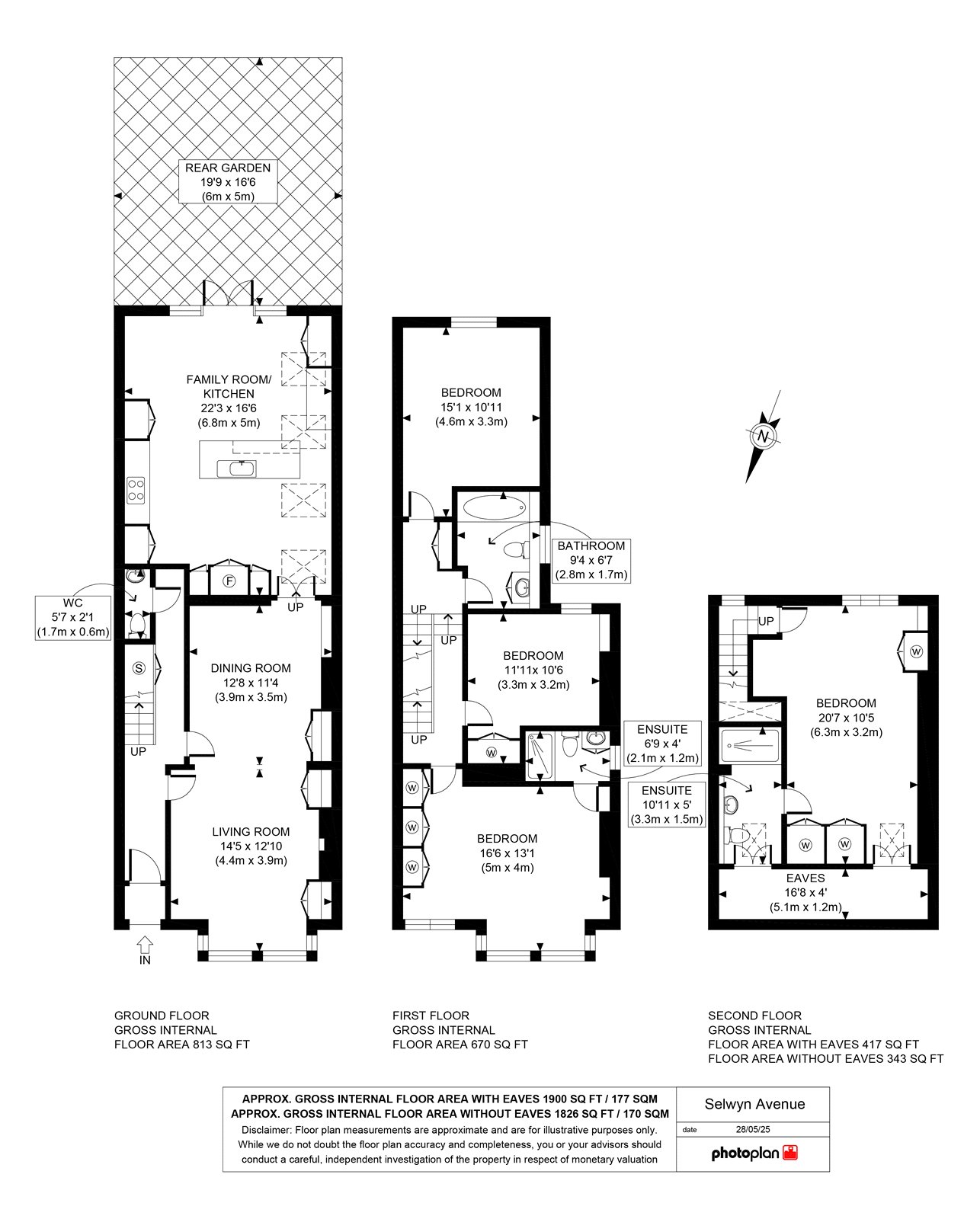
Designed with modern family life in mind, the property boasts a generous open-plan reception and kitchen area, flooded with natural light and ideal for both entertaining and everyday family life. The sleek, fully integrated kitchen flows seamlessly into the reception space, with direct access to the private rear garden—perfect for summer dining, entertaining, and outdoor, relaxed, everyday family living. To the front, a welcoming family room offers a cosy, relaxed space ideal for movie nights, reading, or spending time together.
Arranged over three floors, the home comprises four generous bedrooms and three stylish bathrooms, including a well-appointed en-suite to the principal bedroom and top-floor bedroom, offering flexibility and comfort for a growing family or visiting guests, ensuring comfort and convenience for the whole family.
Further additional highlights include off-street parking, ample storage and a stylish, contemporary finish throughout.
Set within a popular residential area, the property is ideally located for local amenities, excellent schools, transport links, and nearby green spaces such as Old Deer Park and Kew Gardens, with the world-famous Richmond Park also nearby. This is a rare opportunity to secure a high-quality home in a popular residential area.
EPC Rating | D
Council Tax Band | G

“Discover all you need to know about the surrounding area as you consider this property.”
Explore the map below to discover the Selwyn Avenue, Richmond, TW9 area.

Brendan Wynne
Founding Director
Stamp duty calculator
On your doorstep… explore our local area so that you can make an informed decision about where you want to live
Recent properties for sale


























