Sandycombe Road, Richmond, TW9
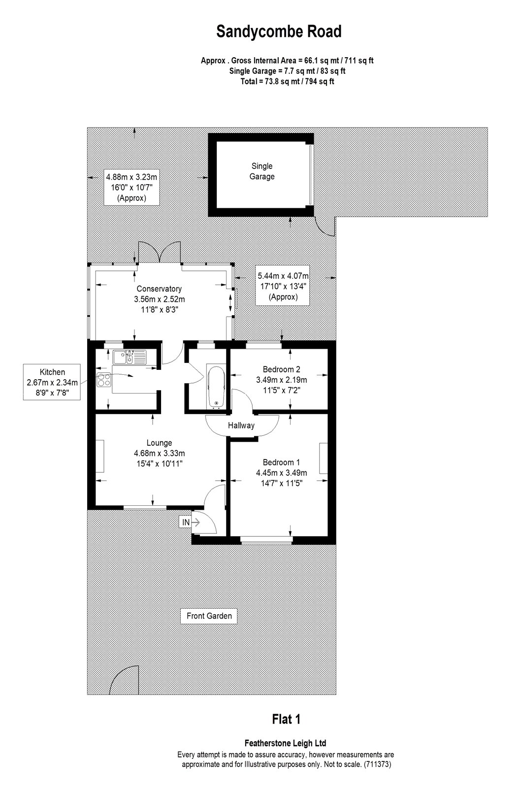
Beautifully presented ground floor apartment, offering stylish and well-proportioned accommodation throughout, with the added benefit of its own private entrance. The property comprises two spacious double bedrooms, a generous reception room flowing effortlessly into a bright and airy conservatory, and a sleek, newly fitted contemporary bathroom. Also, other main benefits are a private west facing garden, a mature front garden, a garage, rarely found in this area and driveway parking. These can all be access directly from the rear of the property and from the main dwelling.
The fully equipped galley-style kitchen is thoughtfully designed, combining practicality with good finishes. To the rear, a private west-facing garden provides an ideal setting for relaxing or entertaining, enjoying afternoon and evening sun..
Ideally situated within easy reach of excellent local amenities, the property is just a short walk from North Sheen station and Kew Gardens station, offering superb transport connections into Central London and beyond. The picturesque Kew Village, renowned for its boutique shops, cafés, bars, and restaurants, is close by, as are the world-famous Royal Botanic Gardens, Kew. The sale of this property will also benefit from a long lease
EPC | D = Council
Tax Band | D

“Discover all you need to know about the surrounding area as you consider this property.”
Explore the map below to discover the Sandycombe Road, Richmond, TW9 area.

Brendan Wynne
Founding Director
Stamp duty calculator
On your doorstep… explore our local area so that you can make an informed decision about where you want to live
Recent properties for sale

























