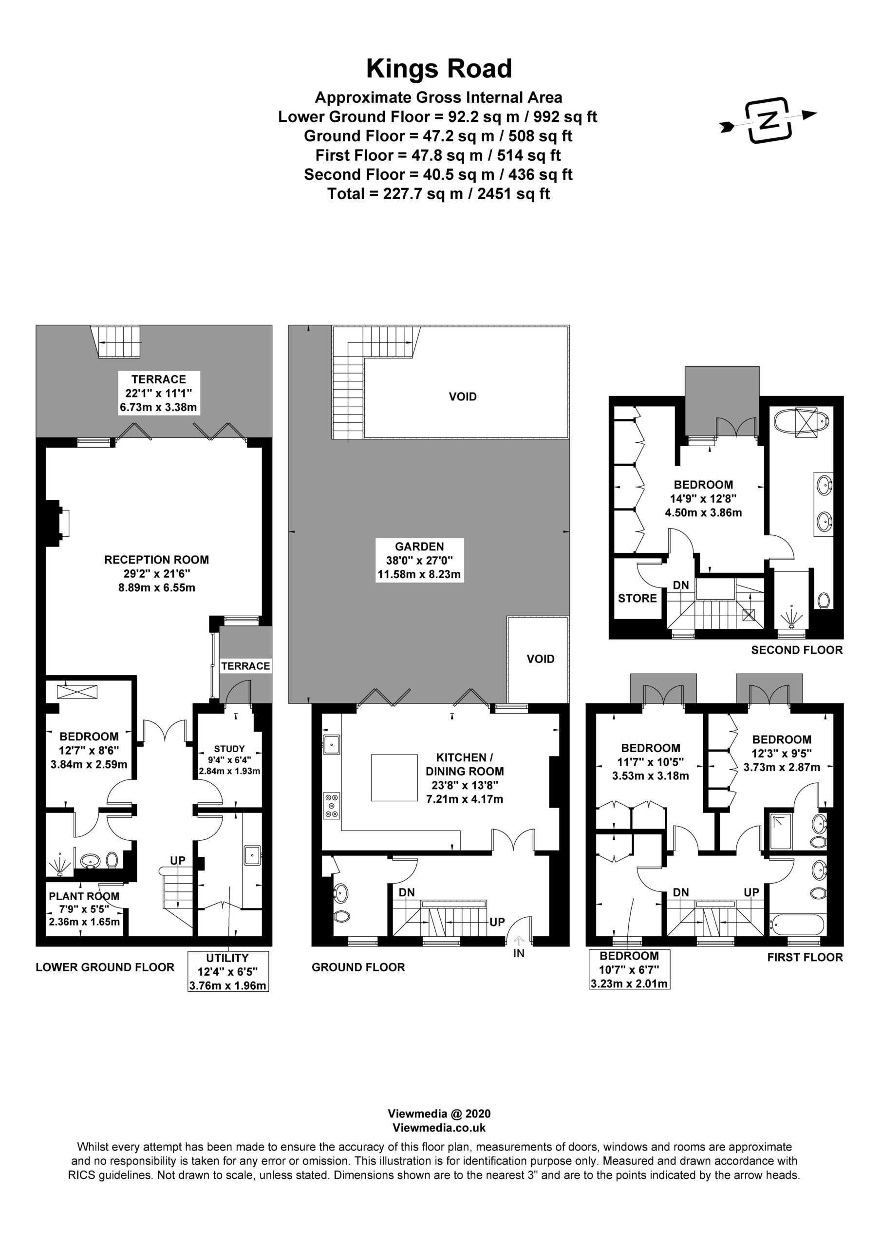
Kings Road, Richmond, TW10
On the lower slopes of Richmond Hill is this Georgian inspired home with 5 bedrooms, secure gated off-street parking, outside space on every floor, Southwest facing garden, and is only moments from Richmond town centre and station
This semi-detached home is a contemporary take on a large Georgian townhouse, with a period detailed facade and contemporary rear elevation with glazing and bi-fold doors. Traditional styling includes attractive stonework, brick detailing, full height glazing, stone terraces, pretty balconies and a pitched roof with classic lead lined dormer windows, all designed to historic Georgian proportions.
The grand family home extends to circa 2,500 square feet and embraces the luxury of space. Individually designed for open-plan living, the house enjoys high ceilings, substantial living areas, contemporary kitchen and bathrooms. At the rear, this highly specified and exclusive home boasts south facing private gardens, terraces, patios and balconies.
Filled with light from full width bi-fold doors and oversized glazing, generous windows and balcony doors, this home offers true inside / outside living space.
EPC=B

• Extending to 2500 sq ft
• Georgian inspired home
• Outside space to every floor
• Moments from town centre
• Gated parking with EV chargers
• Council tax band H
“Discover all you need to know about the surrounding area as you consider this property.”
Explore the map below to discover the Kings Road, Richmond, TW10 area.

Brendan Wynne
Founding Director
Stamp duty calculator
On your doorstep… explore our local area so that you can make an informed decision about where you want to live
Recent properties for sale

























