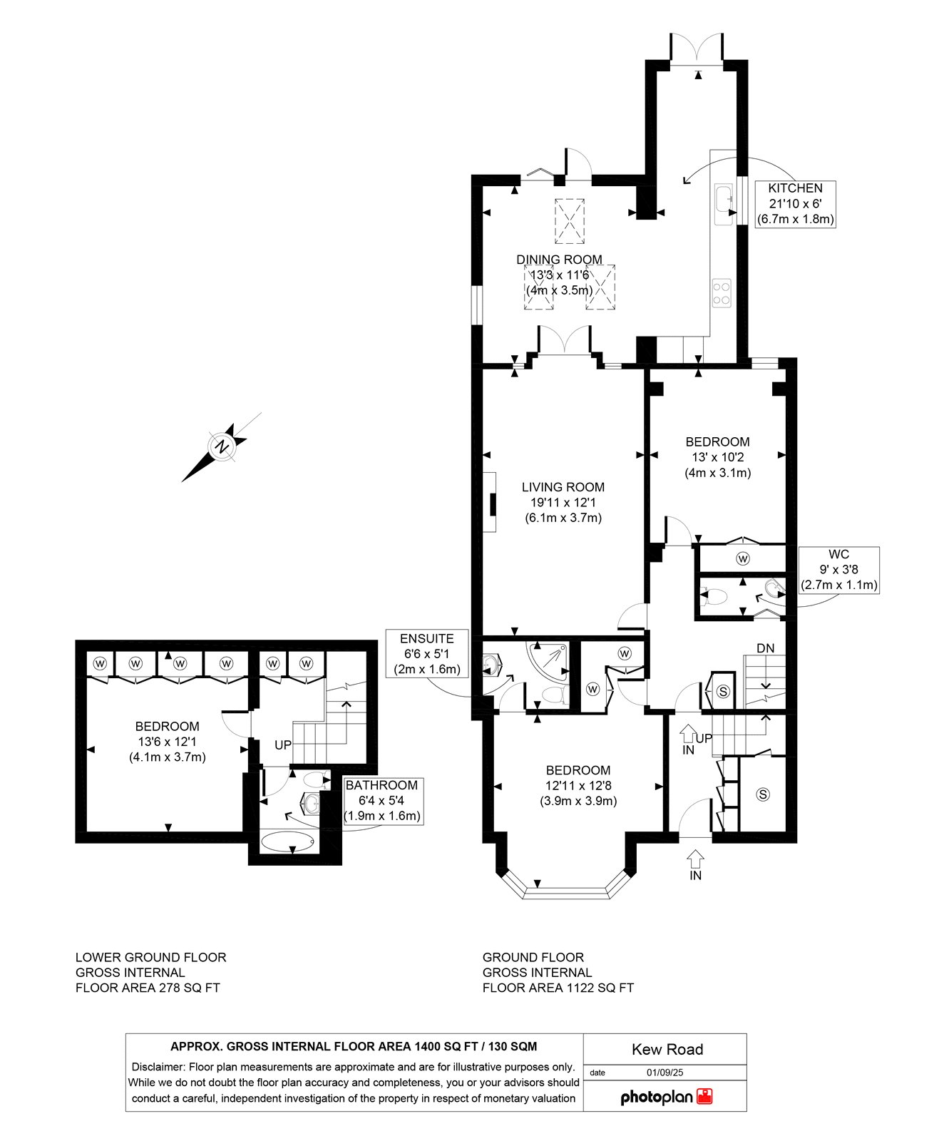
Kew Road, Richmond, TW9
This beautifully presented three-bedroom, two-bathroom flat offers an exceptional blend of comfort, style, and outdoor space. Boasting a very large private garden, this home is perfect for those seeking a peaceful retreat while enjoying convenient access to Richmond life.
Inside, you’ll find well-maintained interiors with tasteful decoration throughout, creating a welcoming and contemporary living environment. The spacious living areas are ideal for relaxing or entertaining, while the bedrooms provide ample space with good storage always needed in an apartment of this size.
Situated just a short walk from Richmond Station, commuting is effortless with excellent transport links into central London and beyond. Nature lovers will also appreciate the proximity to the renowned Kew Gardens, offering stunning green spaces and a tranquil atmosphere.
Don’t miss this fantastic opportunity to own a stylish home in a sought-after location with a rare, expansive private garden.
EPC Rating | D
Council Tax Band | E

“Discover all you need to know about the surrounding area as you consider this property.”
Explore the map below to discover the Kew Road, Richmond, TW9 area.

Brendan Wynne
Founding Director
Stamp duty calculator
On your doorstep… explore our local area so that you can make an informed decision about where you want to live
Recent properties for sale




















