Bank Lane, Roehampton, SW15
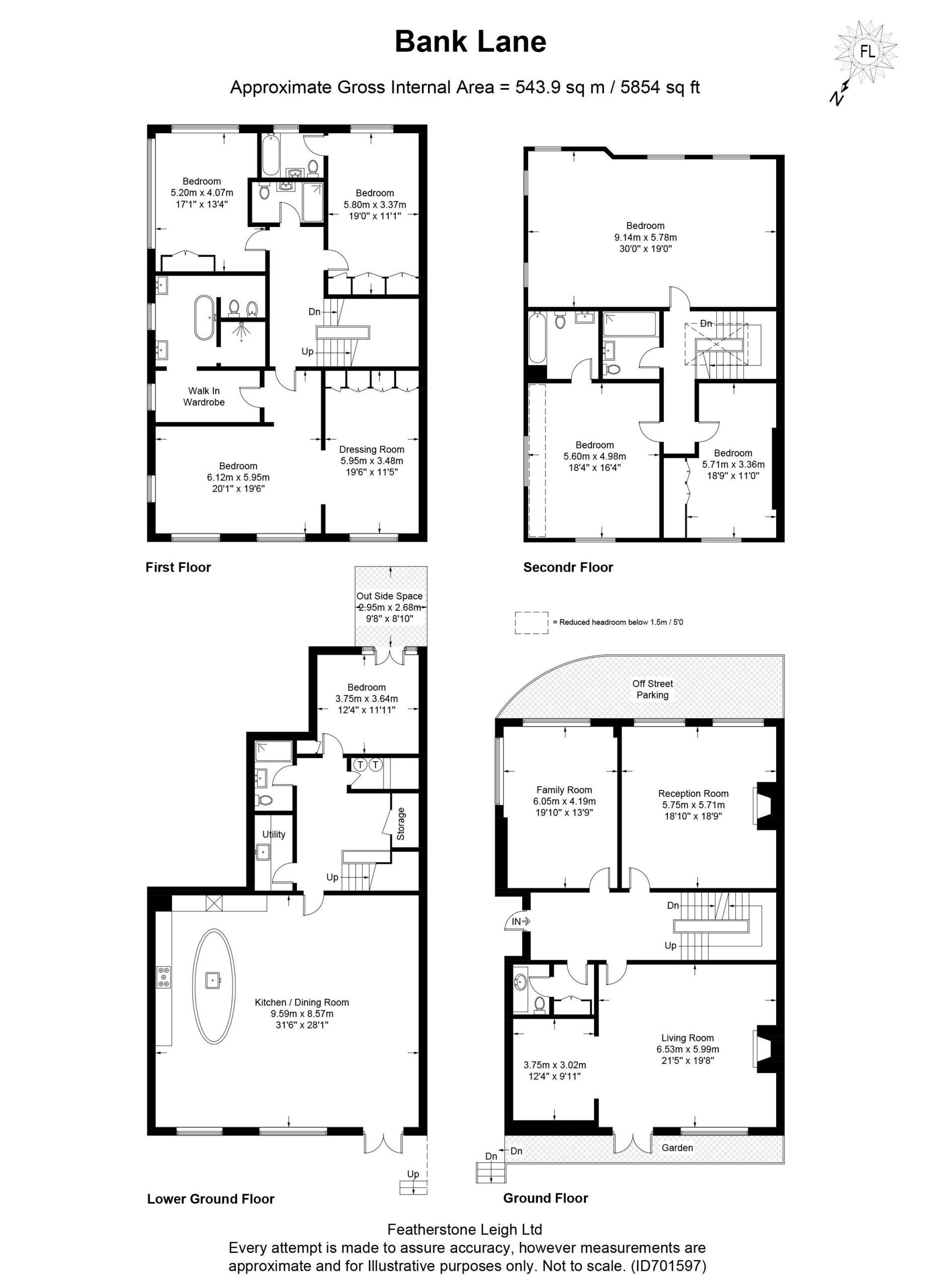
A beautiful, recently constructed detached house finished to an exceptional specification throughout, providing extensive and flexible family accommodation measuring 6,000 sq ft over four floors situated in this prestigious location moments from Richmond Park and Palewell Park. Particular features include the magnificent drawing room opening to a large west facing terrace and a wonderful kitchen incorporating large dining and living areas. Another feature is the superb master bedroom suite with two dressing rooms and a luxury bathroom, in addition to this there are five further bedrooms and four bathrooms whilst on the lower ground floor there is an au pair suite. As well as the magnificently proportioned reception room there is a large study and a further reception room. Externally, there is a terrace overlooking the large west-facing garden, whilst to the front of the property there is secure gated off-street parking for a number of vehicles. EPC=B
The property is situated in an exclusive enclave on the edge of Richmond Park approximately equidistant to Richmond, Barnes, Putney and Wimbledon village. The area is perfect for families seeking an accessible but semi-rural environment as it is surrounded by several large green open spaces including the vast 2,500 acres of Richmond Park, Sheen Common, Palewell Common and Wimbledon Common, all these beautiful open spaces are perfect for dog walking and running. The Roehampton Club is also nearby boasting various sporting facilities including an eighteen hole golf course. For the commuter there is a fast and frequent service in to London Waterloo at Barnes mainline station and there are numerous bus routes operating along the Upper Richmond Road and Roehampton Lane serving Putney, Sheen and Richmond whilst the A3 is also nearby providing access to the M25 and Heathrow and Gatwick airports.

• DETACHED FAMILY HOUSE
• PRESTIGIOUS SOUGHT AFTER LOCATION CLOSE TO RICHMOND PARK
• FOUR RECEPTION ROOMS
• SEVEN BEDROOMS
• SIX BATHROOMS
• OFF STREET PARKING
• LARGE REAR GARDEN
“Discover all you need to know about the surrounding area as you consider this property.”
Explore the map below to discover the Bank Lane, Roehampton, SW15 area.

Brendan Wynne
Founding Director
Stamp duty calculator
On your doorstep… explore our local area so that you can make an informed decision about where you want to live
Recent properties for sale




























