Trowlock Avenue, Teddington, TW11
A substantial 3570 sq ft detached house in River Road with exclusive access to riverside meadow & landscaped 72ft rear garden. It offers six double bedrooms, including master suite with dressing room, 5-piece bathroom & yoga room. Living space is expansive offering so much more
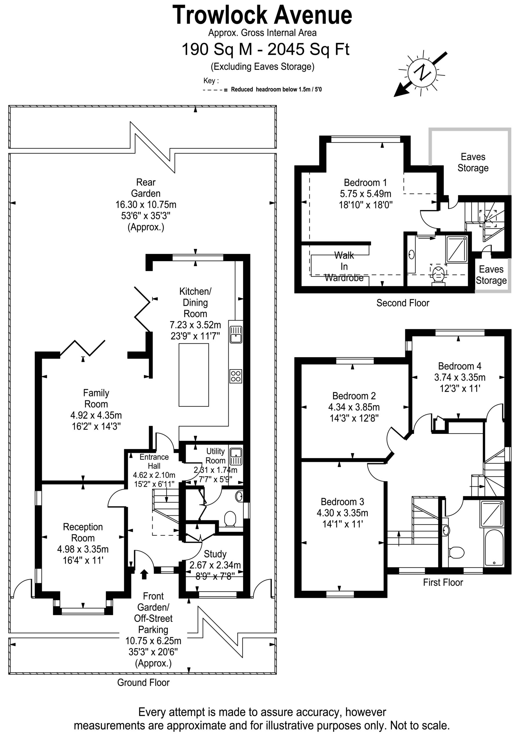
This impressively spacious & detached family house offers nearly 3600 sq ft of floor space with front off-street parking, a garage and a 72ft landscaped rear garden with a brilliant ‘tree house’. Residents in this River Road enjoy exclusive access to a riverside meadow at the end of the road with joyful seasonal parties and social occasions plus, of course access to the river and the potential for a mooring. One enters the property from the front driveway to a truly expansive hallway with a bespoke solid wood staircase to the upper floors and herringbone solid wood flooring which is throughout the ground floor living space. There are two large reception rooms – a formal reception, to the front with log-burner, bespoke shelving with recessed lighting and plantation shutters. To the rear, and opening on to the garden is a magnificent 32ft family/dining room with log-burner which further opens to the kitchen via double doors. The kitchen offers two further sets of doors on to the garden, as well and it comprises contemporary sage ‘shaker-style’ units with island, gas Arger cooker and durable Granite worktops. The accommodation on the upper floors have been extensively upgraded so that the first floor master suite offers a walk-through dressing area and a five-piece bathroom with twin vanity unit, 1.8m walk-in shower and a designer freestanding bath. The master suite further includes a yoga room/nursery. The first floor offers two other double bedrooms; one en-suite plus a bathroom off the hallway and there is a laundry room which is in addition to a utility room & separate WC on the ground floor with a fifth shower for visitors perhaps. The top floor further offers a great ‘teenager’s space’ with three generous double bedrooms with a shower room off the hallway. This cul-de-sac location in Trowlock Avenue is incredibly popular as it is so exceptionally peaceful plus it has the riverside meadow to enjoy. The prestigious & recently refurbished Lensbury Club is close by, as are several independent schools. There are also outstanding state schools including Teddington & Grey Court secondary schools and ofsted ‘outstanding’ Collis, Hampton Wick, Sacred Hearts and St John The Baptist primary schools all within approximately 500 metres. EPC rated C

• Detached period house – 3600 sq ft
• River Road – exclusive riverside meadow
• Six double bedrooms + yoga room
• Two reception rooms
• 72ft garden with tree house
• Master suite dressing room
• Five bathrooms
• Separate utility + 1st floor laundry
• Garage
• Off-street parking + charging point
“Discover all you need to know about the surrounding area as you consider this property.”
Explore the map below to discover the Trowlock Avenue, Teddington, TW11 area.

Dan Johnson
Associate Director
Stamp duty calculator
On your doorstep… explore our local area so that you can make an informed decision about where you want to live
Recent properties for sale







































