Selwyn Avenue, Richmond, TW9
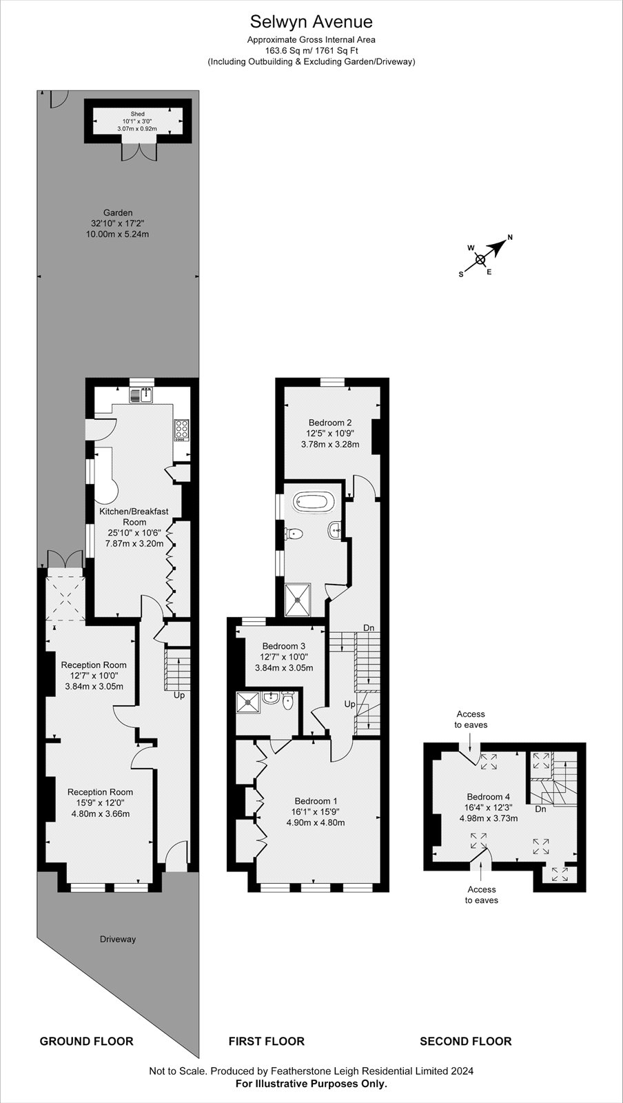
A well-presented, 4 bedroom family home comes to the market on one of the more sought after roads in Richmond. From the ground floor hallway you can access a large through reception room with a square bay window and a fireplace. This room also has access to the rear garden via a set of double doors. At the rear of the ground floor, you find a fully equipped fitted kitchen opening onto the garden. The first floor has a master bedroom with an en-suite bathroom and fitted wardrobes. On the same floor you will find a second bedroom, family bathroom and a third bedroom to the rear overlooking the garden. The top floor has been converted into a large fourth bedroom. Selwyn Avenue is an extremely popular road close to both Richmond town and Kew village as well as Old Deer Park and Kew Gardens. The property benefits from off-street parking for two cars but is also a very short walk to Richmond train and tube station with its transport links into central London and beyond.
EPC Rating | D
Council Tax Band | G

“Discover all you need to know about the surrounding area as you consider this property.”
Explore the map below to discover the Selwyn Avenue, Richmond, TW9 area.

Brendan Wynne
Founding Director
Stamp duty calculator
On your doorstep… explore our local area so that you can make an informed decision about where you want to live
Recent properties for sale

























