Knights Park, Kingston upon Thames, KT1
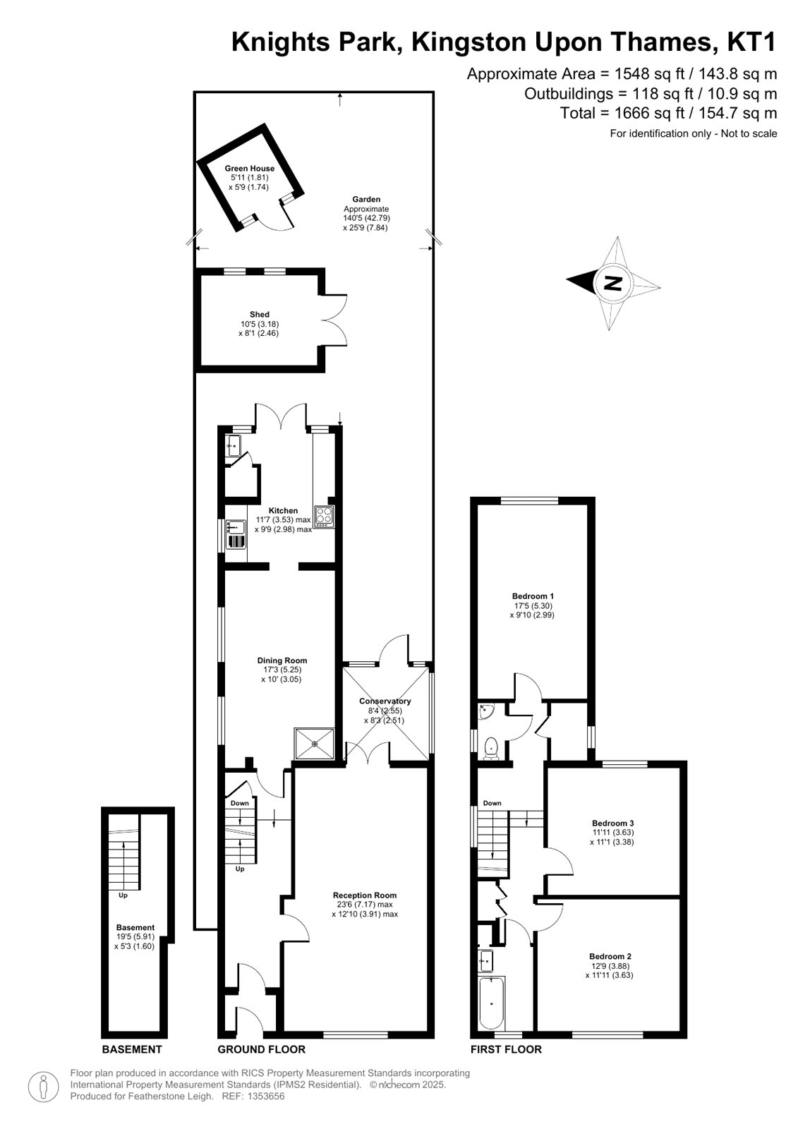
A substantial and beautifully presented three-bedroom, detached Victorian house, ideally located in a highly sought-after central Kingston setting. Situated on a quiet residential road, this charming home offers generous living space, elegant character features and a tranquil and comfortable atmosphere.
The property is offered in good decorative order, boasting well-proportioned rooms and a versatile layout perfect for both family living and entertaining. Accommodation includes three spacious bedrooms, and inviting reception areas filled with natural light.
One of the standout features of this impressive home is the spectacular rear garden, extending to approximately 140 feet—a rare find in such a central location. Beautifully maintained, and exceptionally tranquil, it provides an outdoor haven for relaxation, play, and hosting.
Close to the town, all amenities and transport links, this property also benefits from ample off-street parking for three cars, adding convenience and practicality to this already superb property. Full planning permission for a large ground floor extension has been granted, which would further expand and modernise the existing space.
Offered with no onward chain.
EPC Rating | D
Council Tax Band | G

“Discover all you need to know about the surrounding area as you consider this property.”
Explore the map below to discover the Knights Park, Kingston upon Thames, KT1 area.
Stamp duty calculator
On your doorstep… explore our local area so that you can make an informed decision about where you want to live
Recent properties for sale
































